Minimal by Design
Minimalist Sightlines
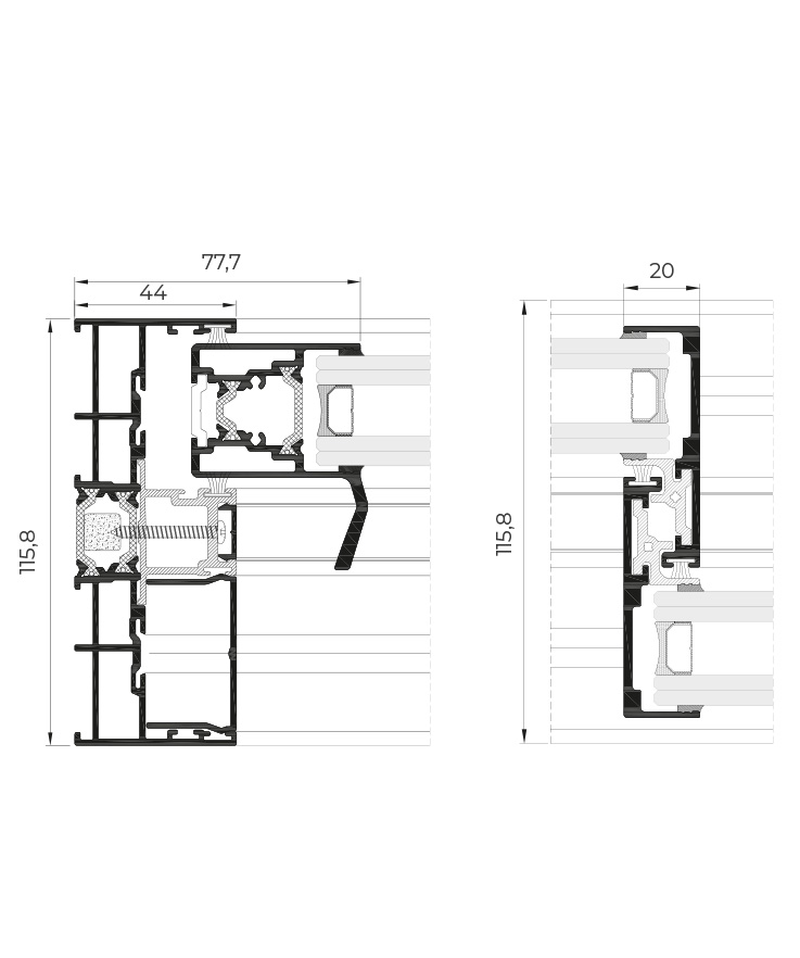
EDGE sliding doors feature an ultra-slim 20mm interlock, creating a near-frameless appearance that maximises daylight and transparency. Perfect for high-end residential or light-commercial spaces, it enhances contemporary architecture with clean, uninterrupted visual flow.


